Vista bild home
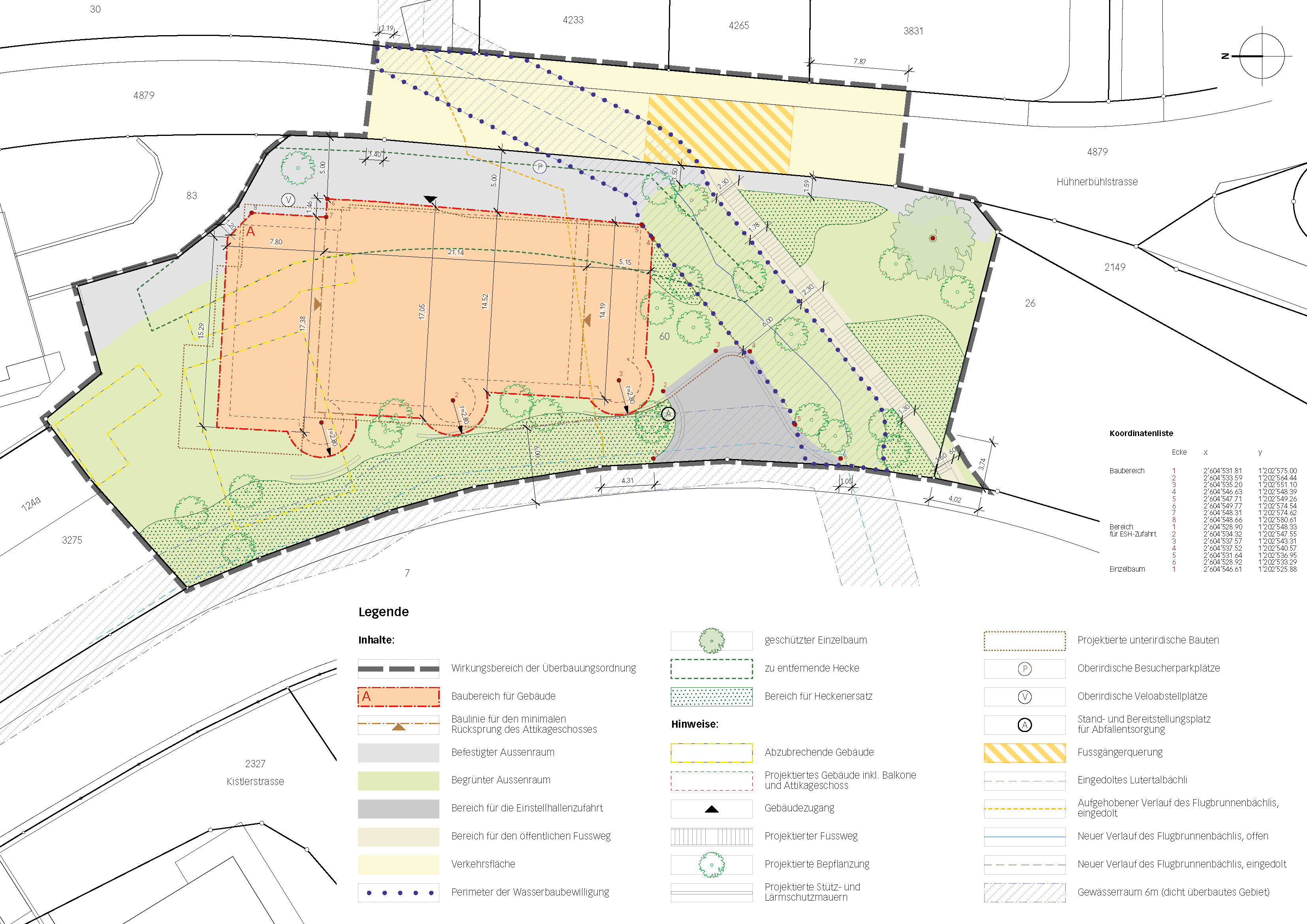
Perimeter der Überbauungsordnung «VistaRotonda».
Planungsinstrumente

VistaRotonda

Am Eingang zum Ortszentrum von Bolligen soll eine Wohnüberbauung mit Weitsicht und viel Grünraum entstehen. Das bestehende Gebäude wird abgebrochen und ersetzt. Mit der Realisierung der Überbauung soll gleichzeitig das heute eingedolte Flugbrunnenbächli freigelegt und revitalisiert werden. Der öffentliche Verbindungsweg zwischen der Bolligenstrasse und der Hühnerbühlstrasse (Stegackerweg) wird neu entlang des offenen gelegten Flugbrunnenbächli geführt. Damit erhält die neue Überbauung eine attraktive Umgebung, von der auch die Öffentlichkeit profitieren kann.

Erfolgreiche Abstimmung über die Überbauungsordnung VistaRotonda

Das Geschäft zur Überbauungsordnung VistaRotonda wurde an der Gemeindeversammlung vom 11. Juni 2024, durchgeführt im Kirchgemeindehaus, einstimmig angenommen.

Dieses Ergebnis ist ein bedeutender Schritt für die Entwicklung des Projekts und ein Zeichen des Vertrauens und der Unterstützung seitens der Bolliger Bürgerinnen und Bürger.

In einem nächsten Schritt wird nun das Baugesuch vorbereitet und nach Ablauf der vorgegebenen Fristen eingereicht.

Vista Bild Ueberbauungsplan
Ausschnitt Überbauungsplan der UeO «VistaRotonda»

Erstellung der Überbauungsordnung auf Basis des Studienauftrags

Die Überbauungsordnung (UeO) VistaRotonda ist ein rechtliches Instrument, das bauliche und gestalterische Vorschriften für das Bauvorhaben am Ortseingang festlegt. Sie regelt Aspekte wie Gebäudehöhe, Bauweise, Abstand zu Nachbargrundstücken und Nutzungszonen. Erstellt und aktualisiert von örtlichen Behörden, lenkt sie die städtebauliche Entwicklung und das Erscheinungsbild.

Die UeO «VistaRotonda» schafft die bau- und planungsrechtlichen Voraussetzungen für eine Überbauung mit möglicher Mischnutzung in verdichteter Bauweise. Sie regelt zudem die Rahmenbedingungen für die Schaffung von attraktiven und funktional aufeinander abgestimmten Aussenräumen. Die UeO bestimmt, wie Erschliessung und Parkierung erfolgen, wie das Flugbrunnenbächli im Rahmen einer Wasserbaubewilligung verlegt und offengelegt werden soll und wie die Überbauung in das Orts- und Landschaftsbild einzubetten ist. Sie sichert ausserdem den bestehenden öffentlichen Fussweg für die Querung des Grundstücks. Dies geschieht durch die Änderung des Zonenplans 1 sowie dem Erlass der UeO «VistaRotonda», über welche an der Gemeindeversammlung im Juni 2024 abgestimmt wird. Für das Baugrundstück wurde 2019 ein Studienauftrags nach SIA 143 durchgeführt. Das Siegerprojekt wurde in Abstimmung mit der Gemeinde weiter ausgearbeitet uns bildet die Grundlage der Überbauungsordnung. Vor Baubeginn wird eine zusätzliche Beurteilung durch die Jury des Studienauftrags erfolgen und dient der Sicherstellung der Qualität nach dem Entwicklungsprozess.

Vista Bolligen Modellbild
Modellfoto VistaRotonda

Verdichtung als Aufgabe

Der Richtplan ist ein strategisches Planungsinstrument, das die langfristige Entwicklung der Siedlungsstrukturen in der Gemeinde Bolligen festlegt. Er dient den Behörden als Leitfaden, um die Siedlungsentwicklung zu lenken und zu koordinieren, unter Berücksichtigung von Umwelt-, Verkehrs- und Sozialaspekten sowie der Bedürfnisse der Bevölkerung.

Der Richtplan «Siedlung» der Gemeinde Bolligen vom Februar 2018 sieht für die Misch- und Wohnzonen an der Bolligenstrasse, worunter auch das Planungsgebiet fällt, eine Nutzungserhöhung vor. Angestrebt wird eine Verdichtung durch Auf- oder Umzonung und der Verzicht auf eine maximale Begrenzung der Ausnützung. Durch die Überbauungsordnung VistaRotonda soll dieser Richtplan nun konkret umgesetzt werden.

Übergeordnet wurde folgendes Ziel festgelegt, die von der Grundeigentümerin strikt verfolgt wird:

Hohe Siedlungs- und Aussenraumqualität sicherstellen

Das Richtprojekt ist Resultat eines qualitätssichernden Verfahrens. Die Weiterbearbeitung des Richtprojekts erfolgte unter Beizug von unabhängigen Fachleuten. Die UeO stellt sicher, dass deren Einbezug bis zur Baueingabe gewähr­leistet ist.